ΠΟΛΥΔΥΝΑΜΟΣ ΞΕΝΩΝΑΣ ΝΕΩΝ ΣΤΟ ΚΙΒΙΣΙΛΙ
ΙΜΑ ΑΡΧΙΤΕΚΤΟΝΙΚΗ – Ιερείδης και Μιχαήλ Αρχιτέκτονες
Αιμίλιος Μιχαήλ, Βασίλης Ιερείδης, Μαρία Ξενοφώντος
2010 | Μελέτη | 1800 τ.μ.
Κιβισίλι, Λάρνακα
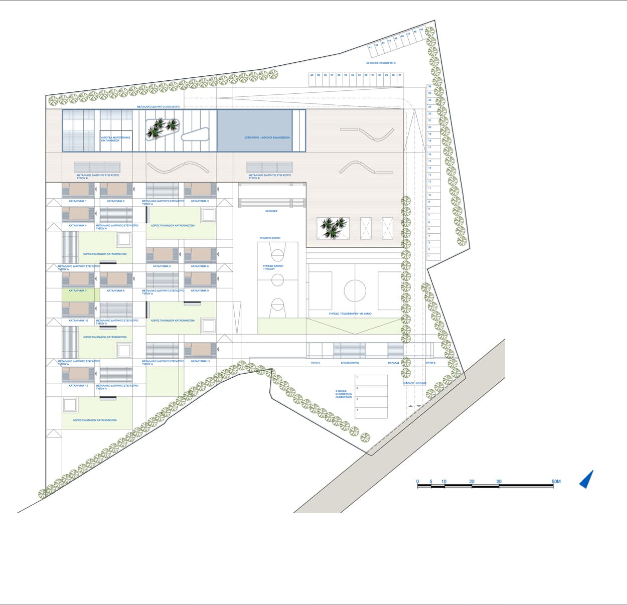
Το Έργο αφορά στη δημιουργία Πολυδύναμου Ξενώνα Νέων στο Κιβισίλι, Λάρνακας. Περιλαμβάνει Κατασκηνωτικό Χώρο και Εγκαταστάσεις Συνεδριακού Κέντρου. Στόχος είναι η δημιουργία ενός χώρου που θα διέπεται από σύγχρονη αρχιτεκτονική αντίληψη και τη χρήση νέων κατασκευαστικών μεθόδων. Ιδιαίτερη έμφαση δόθηκε στον περιβαλλοντικά ορθολογικό σχεδιασμό (φυσικός φωτισμός και διαμπερής αερισμός, κατάλληλη θερμομονωτική προστασία του κελύφους), καθώς και στην χρήση συστημάτων Ανανεώσιμων Πηγών Ενέργειας.
Η ανάπτυξη περιλαμβάνει:
Α’ Φάση
- 12 ξενώνες φιλοξενίας δυναμικότητας μέχρι 192 ατόμων.
- Κτίριο διοίκησης με χώρους υγιεινής, κουζίνα και ιατρείο, το οποίο μπορεί να χρησιμοποιηθεί και ως εκθεσιακός χώρος, βιβλιοθήκη, παιχνιδοθήκη, αίθουσα χειροτεχνίας, κ.α.
- Πολυλειτουργική Αίθουσα Δραστηριοτήτων για διαλέξεις και παραστάσεις δυναμικότητας 400 ατόμων. Σύγχρονες εγκαταστάσεις κουζίνας για σίτιση 300 ατόμων.
- Υπαίθριους χώρους άθλησης (καλαθόσφαιρα, πετόσφαιρα, αντισφαίριση, ποδόσφαιρο, κ.α.)
- Υπαίθριο αμφιθέατρο με δυναμικότητα 500 ατόμων.
- Συγκρότημα πύλης – Επισκεπτήριο.
- Τοπιοτέχνηση υπαίθριου χώρου με πλατείες και κατάλληλη φύτευση (τοπική βλάστηση).
Β’ Φάση
- Κλειστό αμφιθέατρο δυναμικότητας 300 ατόμων – Σύγχρονες εγκαταστάσεις οπτικοακουστικών μέσων, περιστρεφόμενη σκηνή, καμαρίνια, χώρους μεταφραστών, χώρους υποστήριξης, αποθήκες, κ.α.
- Υπαίθριοι και ημιηπαίθριοι χώροι εκτόνωσης.
- Κυλικείο για εξυπηρέτηση των υπαίθριων χώρων.












