PRIVATE RESIDENCE Ε230 – LAKATAMIA
Stella Evangelidou
2015 | Realised | 200 sq.m
Lakatamia, Nicosia
ΚΑΤΟΙΚΙΑ Ε230 – ΛΑΚΑΤΑΜΙΑ
Στέλλα Ευαγγελίδου
2015 | Υλοποιημένο | 200τ.μ + 50τ.μ υπόγειο
Λακατάμια, Λευκωσία
ακολουθεί κείμενο στην ελληνική
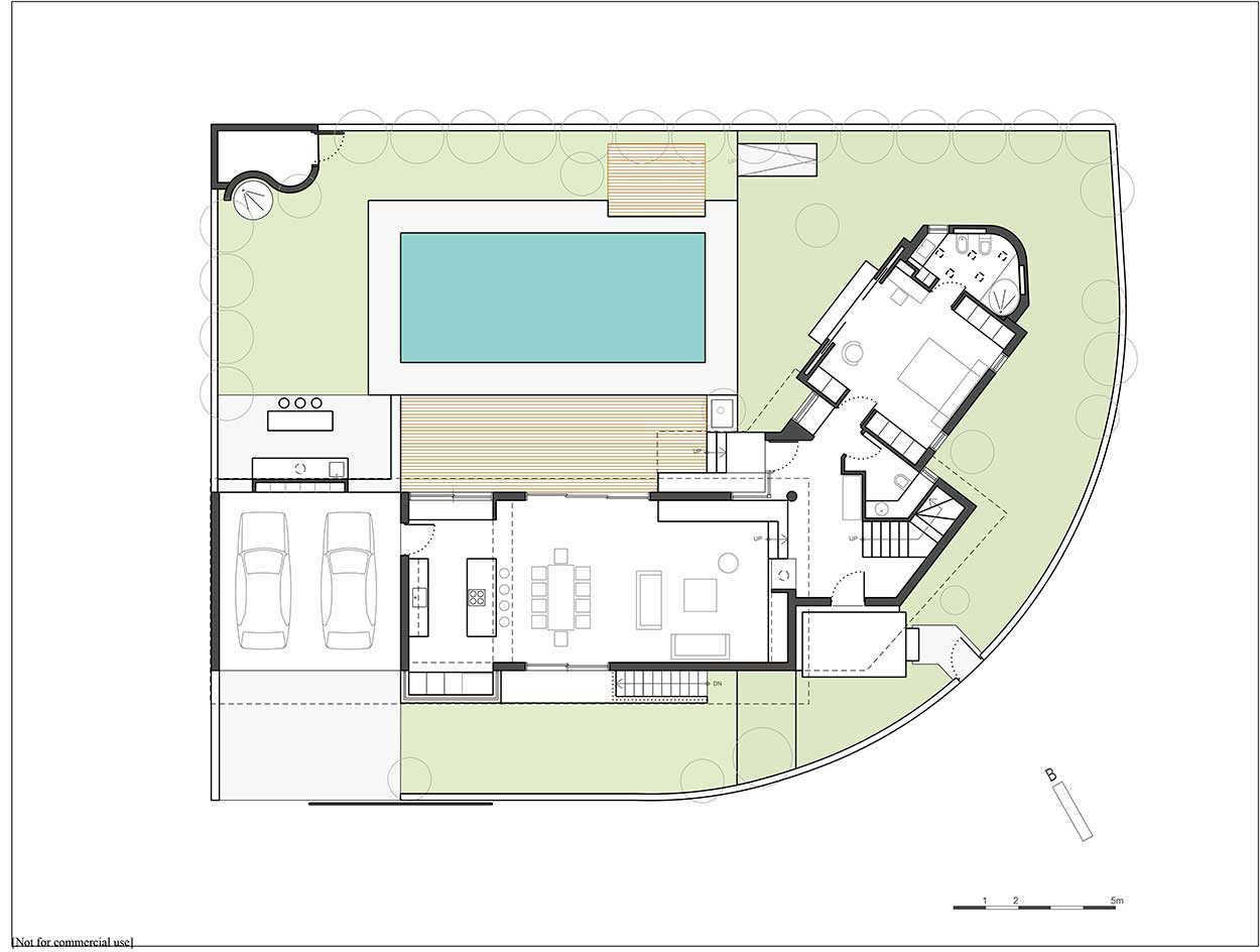
The house is designed for a couple with 2 teenage children and is located at an area under development, in Lakatamia district. It’s built at a corner plot without any significant characteristics besides a small ground inclination from east to west.
The requirements, as given by the clients, refer to an open plan space for the living room, dining room and kitchen, plus 3 bedrooms, space for bookshelves, a swimming pool and a basement for storage and mechanical purposes. The clients, who had the experience of living in a larger house but with a small garden, gave emphasis to their need for a garden but also of a house that would be easily maintained and where they would use all spaces daily.
The concept was based on the owners’ needs which, however, coincided with the architect’s office research regarding the relationship between indoor and outdoor (taking advantage the local climate) so much in regards of the movement as well as of the views. The spatial organization was arranged in an L-shape providing, thus, privacy and opening up the building towards the garden and pool. This, allows for the visual and the experiential relationship of the body in the interior of the house with the exterior, which, in turn, appears as entering the house. From the moment the visitor enters the hall of the house, he/she founds oneself immediately in the garden, through the framed views.
Despite the fact that the visual contact from the interior to the exterior could be presumed in an L-shaped building, in this case, there is also a conscious organization of the window openings so that one could constantly see outside as he/she moves throughout the different spaces or stands at specific spots i.e. the garden/pool is seen as soon as one steps into the entrance hall, as he/she comes up the stair to the 1st floor, while exiting the guests’ WC or standing in front of the basin in the master bedroom bath etc.
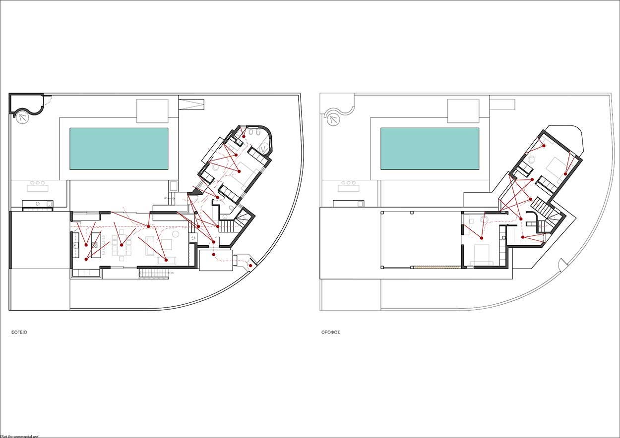
The diagrams show the relationship between static/ moving body and framed views.
ελληνικό κείμενο
Η κατοικία σχεδιάστηκε για ζεύγος με δύο παιδιά στην εφηβεία και βρίσκεται σε υπό ανάπτυξη περιοχή, στην Λακατάμια. Το οικόπεδο είναι γωνιακό, χωρίς ιδιαίτερα τοπογραφικά χαρακτηριστικά πέραν της μικρής κλίσης του οικοπέδου από τα ανατολικά προς τα δυτικά.
Οι απαιτήσεις της οικογένειας αφορούσαν ενιαίο σαλόνι, τραπεζαρία και κουζίνα, τρία υπνοδωμάτια, χώρο για βιβλιοθήκη, πισίνα και υπόγειο για μηχανοστάσιο και αποθήκη. Οι ιδιοκτήτες, που είχαν ήδη την εμπειρία μιας πρώτης ιδιόκτητης κατοικίας μεγαλύτερου εμβαδού αλλά με μικρό κήπο, έδωσαν έμφαση στη σχέση τους με τον κήπο, καθώς και στην ανάγκη για μια κατοικία με εύκολη καθημερινή συντήρηση και όπου όλοι οι χώροι θα χρησιμοποιούνταν καθημερινά.
Το σκεπτικό βασίστηκε στις ανάγκες των ιδιοκτητών, οι οποίες εμπίπτουν και στην διαχρονική έρευνα του γραφείου σχετικά με την σχέση του μέσα – έξω τόσο ως προς την κυκλοφορία όσο και ως προς τις οπτικές φυγές. Η οργάνωση των χώρων έγινε σε σχήμα ‘Γ’, δημιουργώντας έτσι την απαραίτητη προστασία από τον δρόμο και ανοίγοντας το κτίριο προς τον κήπο/πισίνα. Με αυτό τον τρόπο διευκολύνεται μια οπτική και βιωματική σχέση μεταξύ του σώματος εντός της κατοικίας και του εξωτερικού χώρου, ο οποίος εκλαμβάνεται να εισέρχεται εντός της οικίας. Από την στιγμή που ο επισκέπτης περνά από την εξώθυρα της κατοικίας στο εσωτερικό, βρίσκεται ταυτόχρονα στον κήπο μέσω των οπτικών φυγών.
Παρόλο που σε ένα κτίριο σχήματος ‘Γ’ η οπτική επαφή από το κτίριο προς την κεντρική αυλή μπορεί κάποιες φορές να θεωρηθεί δεδομένη, στη συγκεκριμένη περίπτωση, η τοποθέτηση των ανοιγμάτων σχεδιάζεται συνειδητά σε σχέση με την θέση του σώματος κατά τη διάρκεια της κίνησης ή στάσης του μέσα στο κτίριο και σε συγκεκριμένα σημεία. Π.χ. μόλις εισέλθει στην οικία και ενώ βρίσκεται στο χωλλ έχει άμεση οπτική επαφή με το έξω, το οποίο επίσης αντικρίζει στο τέρμα της διακίνησης του διά της σκάλας στον όροφο ή βγαίνοντας από το WC ξένων στο ισόγειο ή κατά τη στάση του μπροστά από τον νιπτήρα του λουτρού ισογείου και ορόφου κ.ο.κ.
Τα διαγράμματα δείχνουν την σχέση μεταξύ κίνησης/στάσης σώματος και οπτικής φυγής.



























