ΚΥΠΕ (ΚΥΠΡΙΑΚΟ ΠΡΑΚΤΟΡΕΙΟ ΕΙΔΗΣΕΩΝ) – ΣΥΜΜΕΤΟΧΗ ΣΕ ΑΡΧΙΤΕΚΤΟΝΙΚΟ ΔΙΑΓΩΝΙΣΜΟ
MCA – Michael Cosmas Architecture
Μιχάλης Κοσμάς
2010 | Πρόταση | 1500 τ.μ.
Αγλαντζιά, Λευκωσία
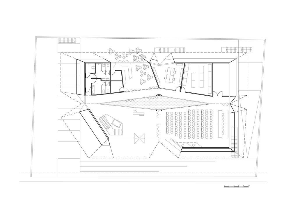
Η πρόταση οργανώνει τους κύριους χώρους του κτιρίου σε μία διάταξη δύο μόνο επιπέδων. Με αυτή τη λύση, επιτυγχάνεται τόσο η αμεσότητα με τη ζώνη πρόσβασης, όσο και η αμεσότητα στις σχέσεις που διατηρούν οι εσωτερικοί χώροι μεταξύ τους.
Το κτίριο διαθέτει δύο κύρια επίπεδα, τα οποία προσφέρουν στην ουσία υποδομή για ενιαίους χώρους, με μεγάλες δυνατότητες μεσοπρόθεσμων ή και μακροπρόθεσμων αναπροσαρμογών. Η ευελιξία αυτή δεν συνεπάγεται όμως και την ομοιογένεια των χώρων. Αντίθετα, με οργανωτικό μηχανισμό το αίθριο που βρίσκεται στο κέντρο του κτιρίου, τα δύο επίπεδα οργανώνονται σε ζώνες όπου η κάθε μία «φιλοξενεί» και μία ενότητα χρήσεων, προσφέροντας έτσι το στοιχείο της «αναγνωσιμότητας» των διαφόρων τμημάτων. Παράλληλα κάθε ζώνη του κτιρίου προσφέρει διαφορετικά χαρακτηριστικά, που πηγάζουν τόσο από τη γεωμετρία των όγκων όσο και απο την διαφοροποίηση της υφής των επιφανειών (διαφοροποίηση υαλοστασίων, ταβανιών δαπεδοστρώσεων).
Η πρόταση οργανώνει την φόρμα του κτιρίου προσβλέποντας στην ανάπτυξη μιας διαδραστικής σχέσης με το αστικό περιβάλλον, και τις «κλίμακες» του.
Η ζώνη εισόδου είναι σχεδιασμένη ώστε να διαθέτει στοιχεία που ανταποκρίνονται και δημιουργούν σχέση με την κλίμακα του πεζού, επισκέπτη ή περαστικού ( ο καλυμμένος χώρος προ της εισόδου, τα σκαλιά, οι επιφάνειες πολυμέσων ). Οι μορφο-πλαστικες κινήσεις των κύριων όγκων του κτιρίου απευθύνονται στην κλίμακα του αυτοκινήτου, με το κτίριο να γίνεται άμεσα αναγνωρίσιμο και εν συνεχεία αναγνώσιμο από τον περαστικό. Ο πύργος υπηρεσιών και μέσων απευθύνεται στην ευρύτερη αστική κλίμακα και αποτελεί σημείο αναφοράς για την περιοχή.















