ΚΑΤΟΙΚΙΑ ΖΕΦΥΡΟΣ
ΚΟΥΤΣΟΦΤΙΔΗΣ ΑΡΧΙΤΕΚΤΟΝΕΣ
Κώστας Κουτσοφτίδης
2010 | Υλοποιημένο | 350 τ.μ.
Πωμός, Πάφος
Από τα πρώτα στάδια της εκπόνησης των σκίτσων, είχαμε στο μυαλό τα λόγια του μεγάλου αρχιτέκτονα. Θέλαμε να ενισχύσουμε τα στοιχεία εκείνα που θα συνέβαλαν στην έκφραση αυτών των σκέψεων, έτσι ώστε κτίριο και το τοπίο να γίνει ένα: να λαμβάνει οποιαδήποτε στιγμή της ημέρας και της νύχτας, ασχέτως της εποχής τον ένδοξο ήλιο, τον Ζέφυρο, το μαγευτικό γαλάζιο της θάλασσας και το μυστηριώδες ασημένιο φεγγάρι του Αυγούστου. Όπως όταν ήμασταν παιδιά, που πηγαίναμε κατασκήνωση και απολαμβάναμε τη φύση, έτσι και οι χρήστες μπορούν να αγκαλιάσουν όλα τα στοιχεία κάτω από μια… μόνιμη κατασκηνωτική σκηνή!
Παρά το γεγονός ότι αρχικά το σπίτι επρόκειτο να χρησιμοποιηθεί για περιοδικές διακοπές, κατά την διαδικασία σχεδιασμού, οι πελάτες μας αποφάσισαν να αφήσουν το Λονδίνο και να έρθουν να διαμείνουν μόνιμα στη Κύπρο, να έχουν μόνιμες… διακοπές!
Καθώς πλησιάζει κανείς το σπίτι από το δρόμο αντικρίζει ένα τοίχο από πέτρα με σκάλα, με την κύρια περιοχή της κατοικίας να αιωρείται από πάνω. Η χρήση της τοπικής πέτρας επιτρέπει στο κάτω μέρος του σπιτιού να ταιριάζει απόλυτα με το τοπίο, και ενισχύει τη βαρύτητα πάνω από την οποία αιωρείται το λευκό πλαίσιο της κύριας κατοικίας.
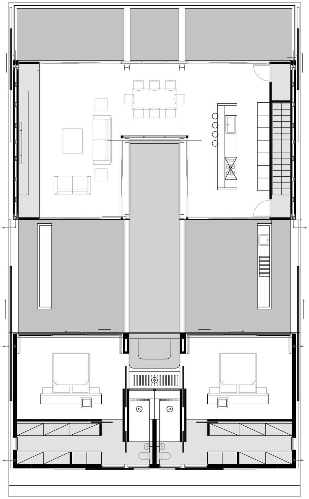
Η κύρια είσοδος στο σπίτι γίνεται μέσω μιας σιδερένιας πόρτας, που οδηγεί σε μια δεύτερη σκάλα μέχρι τους χώρους της κατοικίας. Καθώς εισέρχεσαι, η θέα του ουρανού, τα βουνά και ο ορίζοντας, με τη θάλασσα και το λιμανάκι κάτω πλαισιώνονται σε κάδρα θέασης.
Το ισόγειο χωρίζεται σε δύο περιοχές, με την εισαγωγή στη μέση ενός γενναιόδωρου αίθριου και πισίνας. Η ζωή στη Κύπρο είναι υπαίθρια, λόγω των καιρικών συνθηκών, έτσι αποφασίσαμε να τονίσουμε αυτό το χαρακτήρα, δημιουργώντας ένα αίθριο με πολλά πρόσωπα. Οι συρόμενες οροφές αποσύρονται εκθέτοντας τον ουρανό, ενώ τα ξύλινα πετάσματα, όταν ανοίξουν, καλούν τη γύρω φύση να πάρει μέρος στο εσωτερικό του σπιτιού.
Το σπίτι βλέπει βόρεια στο μικρό ψαρολίμανο του Πωμού, που ήταν το κομβικό σημείο αναφοράς του σχεδιασμού μας. Η θέση και ο προσανατολισμός της κατοικίας δημιουργεί μια κατευναστική αίσθηση ηρεμίας, ενώ η εγγύτητα του γκρεμού και τα γύρω χωράφια με λεμονιές, πορτοκαλιές και πεύκα προσθέτουν ένα “χαρμάνι” από μυρωδιές, που αναμιγνύεται με θυμάρι και άλλα αρωματικά άγρια φυτά.
Ζώντας σε αυτό το σπίτι είσαι εκτεθειμένος στα στοιχεία της φύσης, όντας προστατευμένος, όπως άλλωστε στην κατασκήνωση, απολαμβάνοντας κάθε στιγμή της ημέρας και της νύχτας.
























