Residence in Chalkidos street
ARMON CHOROS
Eleftheria Sergidou, Vasilis Pasiourtides
2007 | Realized | 700 sq.m.
Larnaca
Κατοικία στην οδό Χαλκίδος
ΑΡΜΩΝ Χώρος Αρχιτεκτονικής
Ελευθερία Σεργίδου, Βασίλης Πασιουρτίδης
2007 | Υλοποιημένο | 700 τ.μ.
Λάρνακα
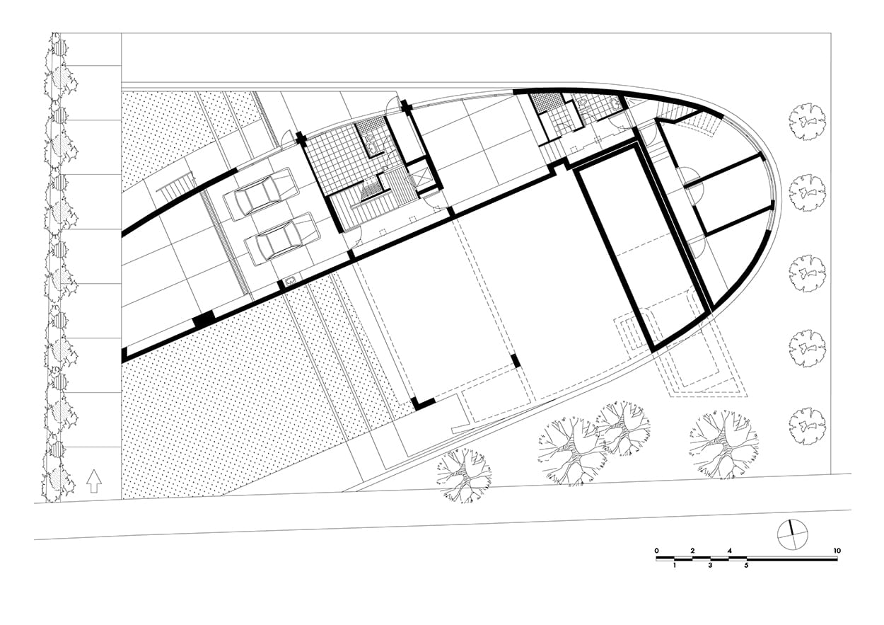
Ζητήθηκε εσωστρεφής κατοικία, με εσωτερική αυλή όπου το υγρό στοιχείο θα αποτελούσε το κυρίαρχο του χώρου αλλά και ολόκληρου του έργου. Αξιοποίηση κατά το δυνατό των φυσικών παραμέτρων, νοτιοανατολικός ήλιος – δυτικός αέρας, οι χώροι να έχουν ύψος και φως αλλά και να είναι λιτοί – φιλόξενοι στα έργα τέχνης της συλλογής του ιδιοκτήτη.
Η αναφορά στο δυτικά γειτονικό άλσος κρίθηκε ότι θα έπρεπε, εκτός από το να είναι άμεση, να παρεμβαίνει καθοριστικά στην μορφοποίηση του έργου.
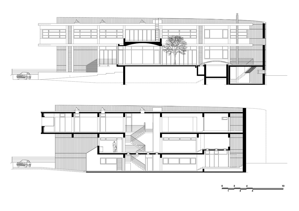
Εξ’ ου και η συμπαγής φλούδα, που περικλείει την κατοικία εγκιβωτίζοντας τον υπαίθριο χώρο, αποκαλύπτεται στα δυτικά. Το φυσικό εισχωρεί εντός της βαθμιδωτά, εναλλασσόμενο μονοχρωματικά και φιλτράρεται στην κορύφωση του όγκου της. Το δε νερό, ελεύθερο και διαβρωτικό, την διανοίγει σημειακά προς τον νότο.
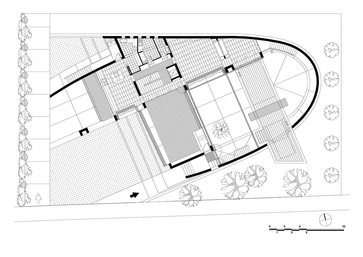
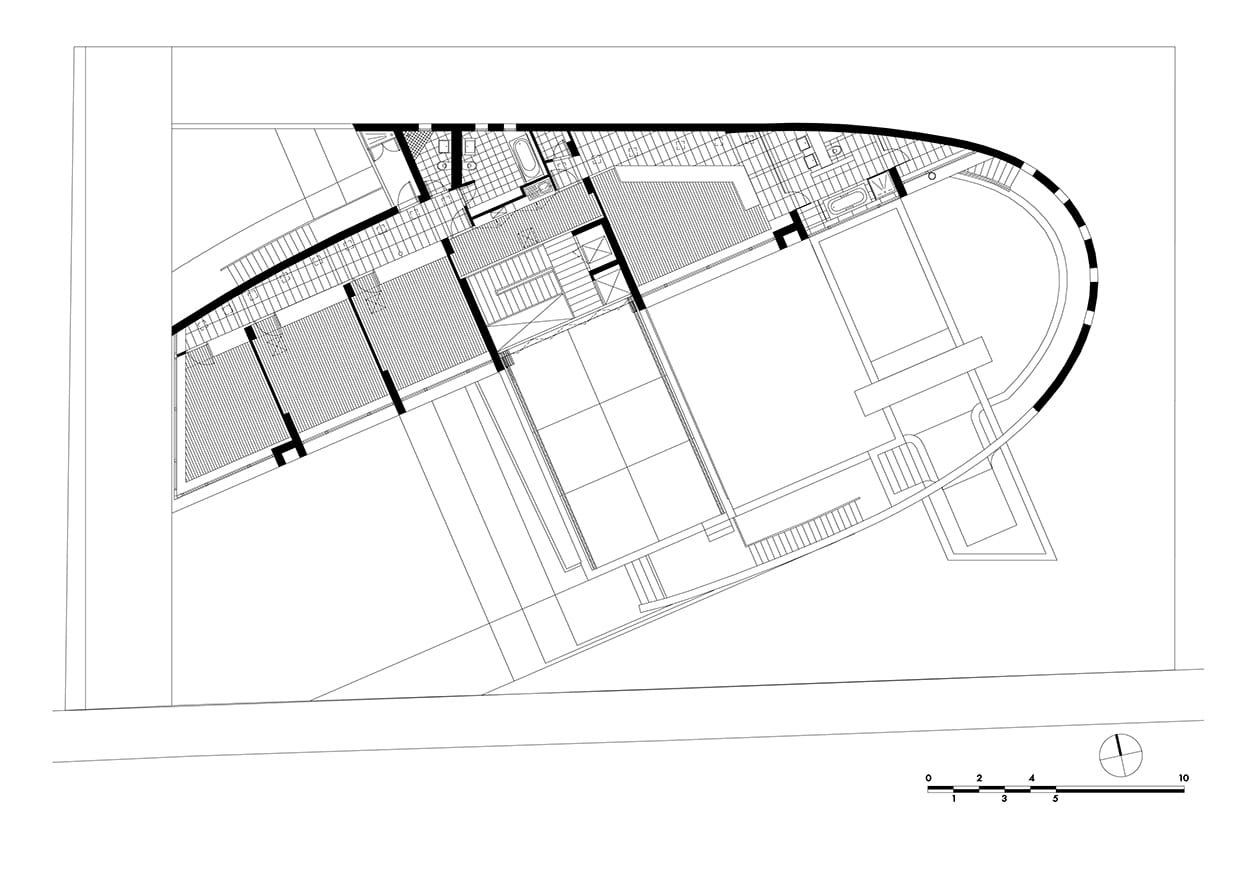
Η πρόσβαση εφάπτεται της καμπυλότητας και οι χώροι βαίνουν στο εσωτερικό, ενώ ο “δημόσιος” χώρος του καθιστικού, διαμπερής, βλέπει και προς τα έξω με θέα στο άλσος. Η εσωτερική κίνηση στο ισόγειο οργανώνει, διαχωρίζει και ενοποιεί το μέσα με το έξω, ενώ στον όροφο υποχωρεί αφήνοντας τους χώρους σε ελεύθερη οπτική προς την αυλή. Οι φυτεύσεις εκτός, επιμερίζονται σε ελεύθερες και μη, μέχρι τα όρια του γηπέδου.
Τα ανοίγματα στα βόρεια περιορίζονται σε σχισμές στην επιδερμίδα του όγκου, για να αναχαιτίσουν το βοριά, ενώ στα νότια και στα δυτικά καταλαμβάνουν όλο το πρόσωπο των χώρων. Οι κινητές περσίδες προστατεύουν από τον δυτικό ήλιο και φιλτράρουν το φως και τη θέαση προς το εσωτερικό της κατοικίας. Τα νότια ανοίγματα καλύπτονται από προεξοχές για την καλοκαιρινή σκίαση.
Στην εσωτερική αυλή, η ελιά και η σκάλα που σε οδηγεί στο δώμα του καθιστικού προσφέρουν μνήμες από την παράδοση.
the photographs were published for the first time in magazine “ΣΥΝΘΕΣΕΙΣ”
οι φωτογραφίες δημοσιεύτηκαν για πρώτη φορά στο περιοδικό “ΣΥΝΘΕΣΕΙΣ”



















