ΠΟΛΥΚΑΤΟΙΚΙΑ ΣΤΗΝ ΟΔΟ ΚΙΜΩΝΟΣ
Ι+Α ΦΙΛΙΠΠΟΥ ΑΡΧΙΤΕΚΤΟΝΕΣ ΜΗΧΑΝΙΚΟΙ
Πάρις Φιλίππου
2012 | Υλοποιημένο | 820 τ.μ.
Έγκωμη, Λευκωσία
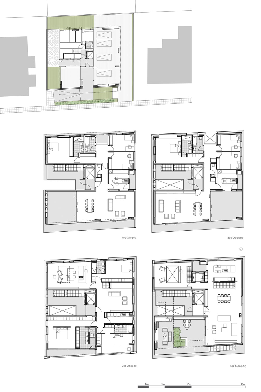
Η πολυκατοικία είναι κτισμένη σε μια περιοχή η οποία στο παρελθόν αποτελούσε εκκλησιαστική γη με φυτείες, κυρίως ελαιώνες. Μια σειρά από τεμάχια στα νοτιοδυτικά του κτιρίου, που παραμένουν εκκλησιαστικής ιδιοκτησίας, έχουν διατηρηθεί σαν συμπαγείς χώροι πρασίνου.
Η γεωμετρία του κτιρίου καθορίζεται από τα οικοδομικά όρια του τεμαχίου καθώς η παρέμβαση εξαντλεί την επιτρεπόμενη κάλυψη. Την μορφή του κτιρίου καθορίζει ένα περίβλημα με αναδιπλώσεις σε διαφορετική όψη ανά όροφο, εντός του οποίου ενσωματώνονται σε ένα ενιαίο σύνολο εσωτερικοί χώροι, βεράντες και κενά μεταξύ των ορόφων. Η χρήση διαφορετικών υλικών για το κάθε στοιχείο του κτιρίου (άσπρο λείο επίχρισμα για το περίβλημα, γκρίζο άγριο επίχρισμα για τους τοίχους, κλπ) αναδεικνύει την αρχιτεκτονική προσέγγιση. Στο ισόγειο μια βάση από ανεπίχριστο σκυρόδεμα οργανώνει την είσοδο, εσωκλείει την πιλοτή και διαμορφώνει την περίφραξη.
Την πολυκατοικία συνθέτουν δυο οροφοδιαμερίσματα στον πρώτο και δεύτερο όροφο και μια μεζονέτα στον τρίτο και τέταρτο. Σε μια αντιστροφή της συμβατικής κατοικίας, το καθιστικό και οι χώροι εστίασης της μεζονέτας τοποθετήθηκαν στον ψηλότερο όροφο (τέταρτο) όπου επωφελούνται μιας μεγάλης βεράντας. Η βεράντα αυτή, που το καλυμμένο μέρος περιβάλλει το ακάλυπτο, είναι στραμμένη προς τους χώρους πρασίνου της περιοχής στα νοτιοδυτικά.
Πέραν από τον βιοκλιματικό σχεδιασμό, τις παθητικές μεθόδους και τα κατάλληλα υλικά που χρησιμοποιήθηκαν για περιορισμό της κατανάλωσης ενέργειας, στο κτίριο υιοθετήθηκε σύστημα γεωθερμίας.



















