Πολυκατοικία Αλέξανδρου Δημητρίου*
Νεοπτόλεμος Μιχαηλίδης
Λευκωσία, 1957-1959
του Χάρη Χριστοδούλου
*Το κείμενο ετοιμάστηκε στα πλαίσια παρουσίασης που κάναμε στην ημερίδα DOMES INDEX 4 – ΑΦΕΤΗΡΙΕΣ, στο Μουσείο Μπενάκη στις 4 Ιουνίου 2016. Ιδιαίτερες ευχαριστίες εκφράζονται στους συνάδελφους αρχιτέκτονες Χάρη Χατζηβασιλείου και Αιμίλιο Μιχαήλ για τη συμβολή τους στην έρευνα μας, καθώς και στο περιοδικό ΔΟΜΕΣ για την πρόσκληση να συμμετάσχουμε στην ημερίδα.
Η Πολυκατοικία Αλέξανδρου Δημητρίου στη Λευκωσία, έργο του κύπριου αρχιτέκτονα Νεοπτόλεμου Μιχαηλίδη σχεδιάστηκε και υλοποιήθηκε την περίοδο 1957 με 59. Το 1966 παρουσιάστηκε στο περιοδικό Αρχιτεκτονική, τεύχος 55, το οποίο παρουσίασε τα σημαντικότερα κτίρια της περιόδου στην Κύπρο. Το 2004 κηρύχθηκε διατηρητέο από το Τμήμα Πολεοδομίας και Οικήσεως. Το 2012 ολοκληρώθηκε η ανακαίνιση του από το γραφείο Ιερείδης και Μιχαήλ Αρχιτέκτονες. Το 2014 συμπεριλήφθηκε από το docomomo Κύπρου στη λίστα με τα 100 σημαντικότερα κτίρια του νησιού. Το παρών άρθρο αναλύει το έργο στην αρχική του μορφή, όπως ολοκληρώθηκε από τον Νεοπτόλεμο Μιχαηλίδη.
Το κτίριο βρίσκεται στα νοτιοανατολικά της παλιάς πόλης της Λευκωσίας επί της λεωφόρου Στασίνου-Σαλαμίνος που διατρέχει την εξωτερική περίμετρο των ενετικών τειχών. Η βορειοδυτική όψη στρέφεται προς το ιστορικό κέντρο και η νοτιοδυτική προς τη σύγχρονη πόλη. Στη συνέχεια θα δούμε ότι το γεγονός αυτό διαδραματίζει σημαντικό ρόλο στο σχεδιασμό των όψεων του κτιρίου από τον αρχιτέκτονα.

Η βάση, ο κορμός και η στέψη συνθέτουν μια κλασική ογκομετρική σύνθεση, φωτο. © Χάρης Χατζηβασιλείου
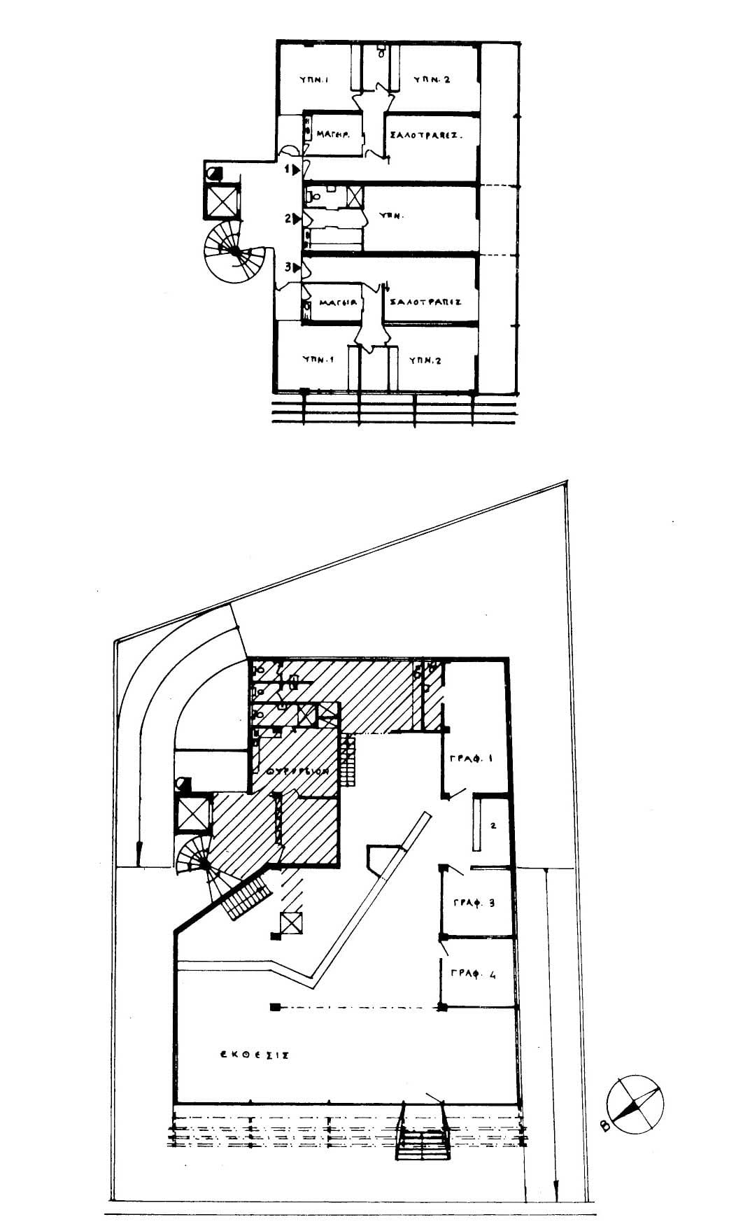
Η γεωμετρία των όγκων είναι ιδιαίτερα απλή. Διακρίνονται ξεκάθαρα τρία μέρη: τη βάση όπου χωροθετούνται οι ισόγειοι εκθεσιακοί εμπορικοί χώροι-γραφεία καθώς και οι ημι-υπόγειες και υπόγειες αποθήκες, τον κύριο κορμό με διαμερίσματα από τον πρώτο έως και τον έβδομο όροφο, και τέλος, τη στέψη όπου στον όγδοο όροφο η ανώτερη πλάκα καλύπτει την ανοικτή προς τη θέα ταράτσα. Τα στοιχεία κατακόρυφης διακίνησης, δηλαδή το κλιμακοστάσιο και ο ανελκυστήρας, τοποθετούνται στη βορειοανατολική πλευρά του οικοπέδου ως στοιχεία ανεξάρτητα από τον κύριο όγκο του κτιρίου.

Ο ανελκυστήρας και το κλιμακοστάσιο τοποθετούνται εκτός του κύριου όγκου του κτιρίου, φωτο. © Χάρης Χατζηβασιλείου
Το κτιριολογικό πρόγραμμα γίνεται άμεσα αντιληπτό. Στον ισόγειο χώρο κυριαρχεί η διαφάνεια των περιμετρικών ορίων και η ελευθερία οργάνωσης των κινήσεων τόσο σε οριζόντιο όσο και σε κατακόρυφο επίπεδο. Νοτιοδυτικά τοποθετείται μια σειρά γραφείων ενώ βορειοανατολικά, και ανεξάρτητα από τους υπόλοιπους χώρους, διαμορφώνεται η είσοδος της πολυκατοικίας που οδηγεί στα ανώτερα επίπεδα.
Οι όροφοι των διαμερισμάτων χαρακτηρίζονται από απλότητα στην οργάνωση των λειτουργιών. Από την ανεξάρτητη κατακόρυφη επικοινωνία κανείς διοχετεύεται στον ημι-υπαίθριο διάδρομο κατά μήκος του οποίου τοποθετούνται οι είσοδοι των διαμερισμάτων στη βορειοανατολική όψη. Νοτιοδυτικά τοποθετούνται τα καθιστικά και τα κύρια ανοίγματα των διαμερισμάτων. Στις άλλες δυο πλευρές του κτιρίου χωροθετούνται τα υπνοδωμάτια με περιορισμένα ανοίγματα.
Κυρίαρχο στοιχείο οργάνωσης της σύνθεσης αποτελεί το δομικό σύστημα από οπλισμένο σκυρόδεμα. Ανά όροφο ορίζεται από έξι σειρές των δυο υποστυλωμάτων που χωρίζουν την κάτοψη σε πέντε ίσα διαστήματα, εντός των οποίων διαμορφώνονται οι χώροι των τριών διαμερισμάτων. Δυο δυάρια καταλαμβάνουν από δυο διαστήματα το καθένα και ένα στούντιο καταλαμβάνει ένα διάστημα.
Η επανάληψη του δομικού μοτίβου σε όλους τους ορόφους αποκαλύπτεται στη νοτιοδυτική όψη σε μορφή κανάβου όπου οι πλάκες ορίζουν τις οριζόντιες γραμμές και στύλοι από μωσαϊκό τις κατακόρυφες. Όλα τα στοιχεία της όψης οργανώνονται σε συνάρτηση με τον κάναβο. Οι διατομές των δοκών εμφανίζονται ως σημεία στη συμβολή των χαράξεων του. Όλα τα ανοίγματα παίρνουν το μήκος δύο πέμπτων ενός κανάβου και τοποθετούνται συμμετρικά με άξονα το στούντιο στο μέσο της όψης. Η κουπαστή χωρίζεται σε δυο ίσα μέρη όπου γίνεται εναλλαγή ανάμεσα σε μεταλλικό κάγκελο από κατακόρυφα στοιχεία και μπετονένιο κυψελοειδές στηθαίο.

Γεωμετρικές συνθέσεις ανοιγμάτων, σκιάστρων και δομικών στοιχείων στη νοτιοδυτική όψη, φωτο. © Κωνσταντίνος Σιδέρης
Το δομικό σύστημα το οποίο όπως προαναφέραμε αποτελεί ρυθμιστή της δομής των εσωτερικών χώρων αποκαλύπτεται τόσο στο ισόγειο όπου ο χώρος μένει ελεύθερος από χωρίσματα όσο και στα ανώτερα επίπεδα του κτιρίου όπου τα υποστυλώματα και τα δοκάρια διαφοροποιούνται από την τοιχοποιία. Οι λοξές πλευρές των δομικών στοιχείων, αφενός μεγιστοποιούν την έκταση μεταξύ των υποστυλωμάτων με τις μικρότερες δυνατές διατομές, αφετέρου διαμορφώνουν ένα ενδιαφέρον αισθητικό αποτέλεσμα το οποίο αξίζει να αποκαλυφθεί και να τονιστεί.
Αυτή την αποκάλυψη ο Νεοπτόλεμος Μιχαηλίδης την κάνει στις δύο παράλληλες, με το δομικό σύστημα, εξωτερικές όψεις και φροντίζει να μας κάνει να το προσέξουμε. Τα υποστυλώματα και τα δοκάρια βάφονται λευκά για να διαφοροποιηθούν από το γκρίζο της τοιχοποιίας, απόφαση που δε διστάζει να πάρει παρόλο που είναι ομοεπίπεδα. Η σκοτία περιμετρικά του δομικού πλαισίου τονίζει αυτό το διαχωρισμό. Η σειρά των φεγγιτών η οποία τοποθετείται ακριβώς κάτω από το δοκάρι, υπογραμμίζει και υπερθεματίζει την ιδιαίτερη γεωμετρία του.

Λοξές δοκοί, τραπεζοειδή ανοίγματα και εσοχές που δημιουργούν παιχνίδια σκιάς διαμορφώνουν μια εξπρεσιονιστική σύνθεση, φωτο. © Χάρης Χατζηβασιλείου
Προχωρώντας ακόμη παραπέρα στο σμίλευμα της όψης με εργαλείο το δομικό σύστημα, ο αρχιτέκτονας τοποθετεί το δοκάρι σε λοξή εσοχή στην απόληξή του στη βόρεια και την ανατολική γωνία του κτιρίου. Η καθ’ ύψος επανάληψη των λοξών σκιών σε συνδυασμό με τα τραπεζοειδή ανοίγματα και ο διάλογος μεταξύ σκελετού και πλήρωσης, συνθέτουν μια σχεδόν εξπρεσιονιστική σύνθεση έντονα διαφοροποιημένη από την αυστηρή ορθοκανονικότητα της νοτιοδυτικής όψης.

Οι εγκοπές στις γωνίες του κτιρίου υπερθεματίζουν την απουσία των ιχνών του δομικού συστήματος στη βορειοανατολική όψη, φωτο. © Χάρης Χατζηβασιλείου
Οι λοξές εσοχές των δοκαριών δημιουργούν εγκοπές στις κάθετες ακμές της βορειοανατολικής όψης, της μόνης όψης όπου δεν είναι εμφανή τα υποστυλώματα και τα δοκάρια. Πιθανόν να τοποθετήθηκαν εκεί από τον αρχιτέκτονα ως ίχνη απουσίας του δομικού συστήματος από αυτή την πλευρά του κτιρίου. Ο επίπεδος τοίχος, εδώ λειτουργεί ως ένα ουδέτερο φόντο όπου τον πρωταγωνιστικό ρόλο έχουν η περίτεχνη κυκλική σκάλα και ο πύργος του ανελκυστήρα.

Ο ανελκυστήρας και το κλιμακοστάσιο τοποθετούνται εκτός του κύριου όγκου του κτιρίου, φωτο. © Χάρης Χατζηβασιλείου
Ας επανέλθουμε στη διαλεκτική σχέση ανάμεσα στη βορειοδυτική και τη νοτιοδυτική όψη. Πολλοί ερευνητές υποστηρίζουν ότι η επιλογή του αρχιτέκτονα να κλείσει ουσιαστικά την κύρια όψη και να τοποθετήσει τα ανοίγματα και τους εξώστες στην πλάγια, έγινε για βιοκλιματικούς σκοπούς. Αυτή η υπόθεση μας βρίσκει σύμφωνους. Ωστόσο, δεν παύει να είναι απρόσμενο το γεγονός ότι στην κύρια όψη, η οποία μάλιστα στρέφεται προς την παλιά πόλη, δεσπόζουν φεγγίτες.
Οι αρχιτεκτονικές λεπτομέρειες αυτής της όψης που όπως προαναφέραμε είναι ορατές με πιο προσεκτική παρατήρηση, μαρτυρούν ιδιαίτερη ευαισθησία στο χειρισμό της, που ενδεχομένως να σχετίζεται πιο στενά με την αρχιτεκτονική των παραδοσιακών οικιών, των ιστορικών αρχοντικών αλλά και των μνημείων που βρίσκονται στην εντός των τειχών παλιά Λευκωσία. Επιπλέον, θα μπορούσαμε να πούμε ότι η εξωστρέφεια και η αυστηρή γεωμετρία της νοτιοδυτικής όψης εκφράζουν καλύτερα το πνεύμα της εποχής στην οποία κτίζεται το έργο και της κατεύθυνσης που θέλει να ακολουθήσει στο μέλλον η αρχιτεκτονική και η πολεοδομία.
Παρατηρώντας την εισαγωγή απρόσμενων αρχιτεκτονικών στοιχείων και τον λεπτεπίλεπτο χειρισμό τους από τον Νεοπτόλεμο Μιχαηλίδη σε αυτό το έργο, αντιλαμβανόμαστε τη σημασία των ιδιωματισμών που ο δημιουργός ανέπτυξε στο συντακτικό της κατά τα άλλα μοντέρνας αρχιτεκτονικής του. Αναμφισβήτητα, η σχεδιαστική του προσέγγιση απορρέει από το Μοντερνισμό που εκείνη την περίοδο μεσουρανούσε στον ελληνικό χώρο. Ωστόσο, δε διστάζει κάποιες στιγμές να παραβεί τους κανόνες της σύνθεσης και να δημιουργήσει νέους, προκειμένου να φτάσει σε ένα αισθητικό αποτέλεσμα που αποκαλύπτει τη δική του αλήθεια συναρτώμενη με τα βιώματα και τις αναφορές του. Το αναπάντεχο, εν τέλει, μπορεί να αποτελέσει πεδίο εξάσκησης και διαδικασία επαλήθευσης ή διάψευσης των ιδεών. Ορισμένες φορές, ο χειρισμός αποσπασμάτων του όλου με τρόπο που αντιβαίνει στους κανόνες, μπορεί να δώσει μια άλλη προοπτική θεώρησης των πραγμάτων. Μια τέτοια προσέγγιση μας καλεί να αναμετρηθούμε με παγιωμένες αντιλήψεις που μπορεί να έχουμε για τον χώρο, την πόλη, τον κόσμο, ακόμη και για τον ίδιο μας τον εαυτό.











