Notaio Camerdella
DOMA
Haris Hadjivassiliou
2013 | Realized | 300 sq.m.
Brescia, Italy
DOMA
Χάρης Χατζηβασιλείου
2013 | Υλοποιημένο | 300 τ.μ.
Μπρέσια, Ιταλία
O εργοδότης, κος Καμαρτέλλα (Δικηγόρος / Συμβολαιογράφος), είχε ζητήσει την επαγγελματική μου άποψη για πιθανές επιλογές οργανωμένων γραφειακών χώρων με σκοπό τη μεταφορά των δικηγορικών του γραφείων. Τα υφιστάμενα γραφεία δικηγόρων καθώς και οι προτεινόμενοι νέοι χώροι βρίσκονταν στην πόλη Βρεσία της επαρχίας Λομβαρδίας Βόρειας Ιταλίας.
Κατά τη διάρκεια αριθμού επιτόπου επισκέψεων, είχε τελικά διαφανεί η ανάγκη για εκ νέου σχεδιασμού εσωτερικών χώρων, που αφενός να απαντούν στις συγκεκριμένες ανάγκες δικηγορικών γραφείων, και αφ’ ετέρου να διασφαλισθούν οι απαιτούμενες προδιαγραφές για τις ανέσεις καθώς και απαιτήσεις ενεργειακών αποδόσεων που είναι και ιδιαίτερα αυστηρές σε αυτή την περιοχή.
Καταλήξαμε στην περιοχή “Brescia Due” που αποτελεί το γραφειακό κέντρο (Down Τown) της Μπρέσιας με διάσπαρτα πολυώροφα κτήρια όπου το μείζον θέμα προσβασιμότητας και εύκολης στάθμευσης δεν αποτελούσε πρόβλημα. Επιπρόσθετα, η ανωτέρω περιοχή βρίσκεται κοντά στο σταθμό των τρένων και είναι μόλις ένα χιλιόμετρο από το ιστορικό κέντρο της πόλης.
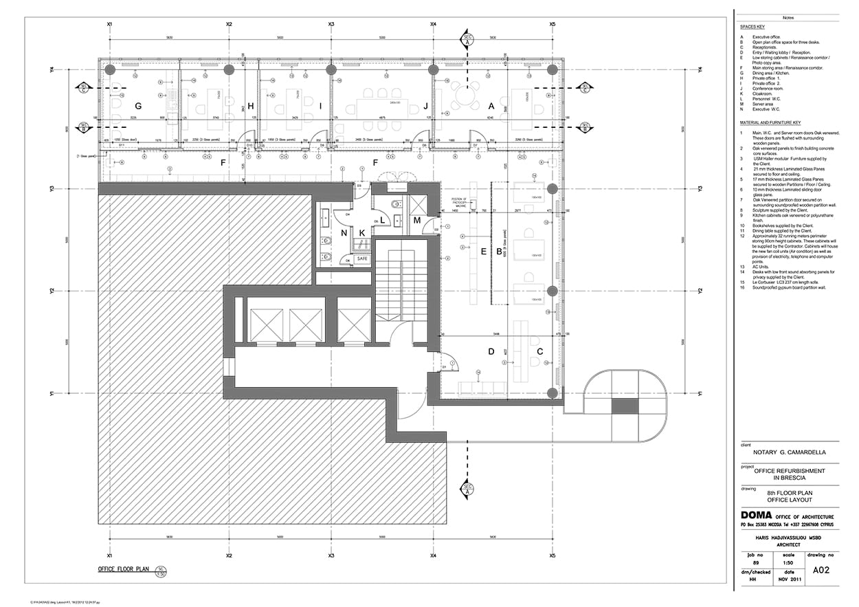
Επιλέχθηκε για αγορά ο δέκατος όγδοος όροφος κτηρίου κατασκευασμένου από ενισχυμένο σκυρόδεμα, μέρος του οποίου (η περιοχή που καθορίζεται στις κατόψεις με γκρίζο χρώμα) θα μπορούσε να προσφερθεί προς το παρόν προς ενοικίαση. Η αρχιτεκτονική πρόταση επέβαλλε την ολοκληρωτική αφαίρεση των υφισταμένων κατασκευών, την ανακαίνιση και ανάπλαση του χώρου. Στην πρόταση θα έπρεπε να λαμβάνεται υπόψη και η μελλοντική πιθανότητα αρμονικής επέκτασης. Έχοντας υπόψη τα πιο πάνω κρίθηκε ότι η επένδυση ανακαίνισης και εξαγοράς του ορόφου σε ένα κτήριο με σύγχρονη εικόνα και κατασκευαστική / αρχιτεκτονική ποιότητα ήταν λογική. Η απρόσκοπτη θέα προς το ιστορικό κέντρο και οι γενικά αναβαθμισμένοι κοινόχρηστοι χώροι ήταν επίσης καθοριστικά σε αυτή την επιλογή.
Ο υφιστάμενος κεντρικός πυρήνας καθόρισε τις δύο κάθετες μεταξύ τους γραμμικές αναπτύξεις (διαμόρφωση «Γ») εντάσσοντας έτσι όλους τους εργασιακούς χώρους στην περίμετρο του κτηρίου. Λόγω έλλειψης τετραγωνικών μέτρων και για να μην επεκταθούμε σε άλλη περιοχή του ορόφου, η κουζίνα έχει σχεδιαστεί για να μπορεί να μεταλλάσσεται σε ένα δεύτερο χώρο συνεδριάσεων με τη χρήση ανεγειρόμενων πανέλων. Ο ωφέλιμος χώρος που τελικά χρησιμοποιήσαμε έφτασε στα περίπου 300 τ.μ.
Στην περιοχή του πυρήνα και κοντά στις κεντρικές κάθετες γραμμές δικτύων ενσωματώθηκαν οι χώροι υγιεινής καθώς και τα δύο ηλεκτρονικά κέντρα με ανεξάρτητα αυτόνομα κλιματιστικά. Οι ανάγκες αρχειοθέτησης περιορίστηκαν στους διαδρόμους διακίνησης που είχαν σχεδιαστεί με ιδιαίτερο πλάτος και σχετικές αναλογίες (renaissance corridor) για αυτή τη χρήση αλλά και για να προσφέρουν ποιότητα στο χώρο διακίνησης. Μας είχε ζητηθεί όπως μέρος του αρχείου να προβάλλεται, μια και αυτό προδίδει ιδιαίτερο γόητρο στα γραφεία συμβολαιογράφων. Η ανωτέρω ανάγκη απαντήθηκε με την τοποθέτηση στο χώρο υποδοχής των επιβεβαιωμένων από το κράτος συμβολαίων σε διάφανο έπιπλο το οποίο επίσης διαχωρίζει ζώνες εργασίας και διακίνησης.
Τα μηχανήματα των εξωτερικών μηχανολογικών εγκαταστάσεων υποστήριξης του χώρου έπρεπε να εντάσσονταν με διακριτικότητα στις προσόψεις του κτηρίου. Παράλληλα, η τελική τους οργάνωση έπρεπε επίσης να εγκριθεί από τον αρμόδιο Δήμο αλλά και από την επιτροπή του κτηρίου. Παρόλο που τα παράθυρα είχαν την δυνατότητα να ανοίγουν μόνο δέκα εκατοστά (για ασφάλεια), η τοπική Δημοτική Διοίκηση μας επέβαλε εκ των υστέρων μηχανική προμήθεια καθαρού αέρα στο χώρο, απαίτηση που διαμόρφωσε τελικά την αρχική μας πρόταση.
Τα υλικά και χρώματα είχαν επιλεγεί για να αντέξουν στο χρόνο μακριά από στυλιστικές και εφήμερες τοποθετήσεις, δίνοντας έτσι και τη σοβαρότητα που επιβάλλεται στα γραφεία Συμβολαιογράφων που ελέγχονται με συνδρομή Πρωτοκόλλου του Ιταλικού Κράτους.
Το γκρίζο πάτωμα, από ημι-γυαλισμένο γρανίτη, προσφέρει αντοχή στην καθημερινή διακίνηση μεγάλου αριθμού επισκεπτών δημιουργώντας μια ευχάριστη αντίθεση με τα δρύινα ζεστά πανέλα που επικαλύπτουν τον πυρήνα από μπετόν. Στην παλέτα των χρωμάτων έχει προστεθεί το μαύρο των μεταλλικών επίπλων (με ξύλινες επιφάνειες εργασίας) σε αντίθεση πάλι των επιφανειών υαλοπετασμάτων που κάνουν το χώρο πιο διαμπερή, ούτως ώστε το πέρασμα της ώρας με τα χρώματα και το φως της ημέρας να αποτελούν αναπόσπαστο μέρος της σύνθεσης.

















