ΝΕΟ ΓΥΜΝΑΣΙΟ ΑΘΗΕΝΟΥ
Γιάννης Αγησιλάου, Γιώργος Καλαβάς, Κωνσταντίνος Φισεντζίδης
2009 | Υλοποιημένο | 3.010 τμ
Αθηένου, Λάρνακα
Το οικόπεδο βρίσκεται στις παρυφές της οικιστικής περιοχής του Δήμου Αθηένου.
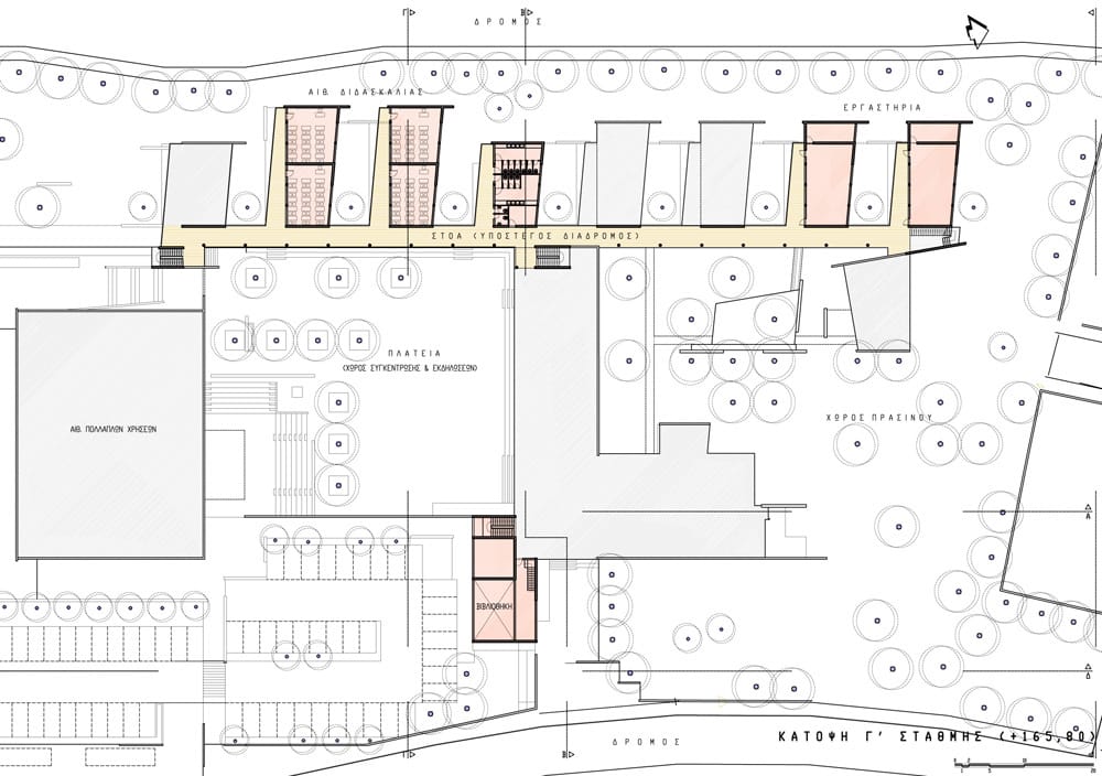
Αξιοποιώντας την υψομετρική διαφορά και τη μορφολογία του εδάφους, οι χώροι αναπτύσσονται σε τρεις βασικές στάθμες: δύο ισόγειες και μία σε όροφο.
Δύο κάθετοι πεζόδρομοι αποτελούν τους βασικούς οργανωτικούς άξονες των επιμέρους λειτουργικών ενοτήτων του σχολείου, τόσον όσον αφορά τους κλειστούς χώρους, όσο και τα γήπεδα και τους υπαίθριους χώρους. Οι δύο αυτοί βασικοί άξονες κίνησης στο μεγαλύτερο μέρος τους είναι καλυμμένοι και λειτουργούν σαν στοές περιμετρικά της πλατείας, των αιθουσών διδασκαλίας και των εργαστηρίων.
Η αίθουσα πολλαπλών χρήσεων ανοίγει στον δρόμο, εξυπηρετώντας ταυτόχρονα και την κοινότητα.
Ο τρόπος με τον οποίο διατάσσονται οι αίθουσες διδασκαλίας εξασφαλίζει για την καθεμιά ξεχωριστά τον δικό της ημιϋπαίθριο και υπαίθριο χώρο («ιδιωτική» αυλή).
Βασικές αρχές βιοκλιματικής αρχιτεκτονικής -όπως ο προσανατολισμός, η ηλιοπροστασία, η διευκόλυνση του φυσικού δροσισμού και διακίνησης του αέρα με διαμπερή ανοίγματα, η κατάλληλη και μελετημένη φύτευση- έχουν αποτελέσει βασικές παράμετρους σχεδιασμού, τόσο για την εξοικονόμηση ενέργειας, όσο –κυρίως- και για τη δημιουργία χώρων ευχάριστων, φιλικών και φιλόξενων.

Το υπαίθριο θέατρο ως επέκταση της πλατείας/ κεντρικής αυλής του σχολείου. Στα αριστερά, η διαμπερής σκηνή της αίθουσας πολλαπλών χρήσεων εξυπηρετεί τόσο εσωτερικά την αίθουσα, όσο και εξωτερικά τις υπαίθριες εκδηλώσεις, © Χρίστος Παπαντωνίου

Η στοά με τις αίθουσες διδασκαλίας στραμμένες προς τη μεσημβρία. Τα μπαλκόνια και οι πρόβολοι εξυπηρετούν ταυτόχρονα λόγους βιοκλιματικούς (σκίαση κατά τους μήνες που ο ήλιος είναι ανεπιθύμητος), © Χρίστος Παπαντωνίου

Άποψη του σχολικού συγκροτήματος από τα ΝΑ. Σε πρώτο πλάνο, η αίθουσα πολλαπλών χρήσεων, © Χρίστος Παπαντωνίου

Η σκηνή και τα παρασκήνια της αίθουσας πολλαπλών χρήσεων. Οι μεγάλες συρόμενες πόρτες στα αριστερά όταν ανοίγουν επιτρέπουν τη χρήση της σκηνής από το υπαίθριο θέατρο, © Χρίστος Παπαντωνίου

Η αίθουσα πολλαπλών χρήσεων και τα γήπεδα από την πτέρυγα των αιθουσών διδασκαλίας, © Χρίστος Παπαντωνίου

Η είσοδος της βιβλιοθήκης με το κλιμακοστάσιο για το πατάρι. Εξωτερικά, ο υπόστεγος χώρος εισόδου και η στοά μπροστά από την πλατεία, © Χρίστος Παπαντωνίου

Τοπογραφικό. Στα βόρεια το κτιριακό συγκρότημα με τους υπαίθριους χώρους συγκέντρωσης, τις αυλές και τους κήπους, στα νότια τα γήπεδα. Κεντρικά, η αίθουσα πολλαπλών χρήσεων με ανεξάρτητη, δεύτερη είσοδο από τον δρόμο, © ΑΚ Αρχιτεκτονικό Εργαστήρι














