ΚΑΤΟΙΚΩΝΤΑΣ ΕΝΤΟΣ ΤΩΝ ΤΕΙΧΩΝ
ΕΥΗ ΜΙΧΑΗΛ
2013 | Τμήμα Αρχιτεκτονικής Πανεπιστημίου Frederick
Φοιτητική Εργασία | 2ο Έτος | Επιβλέποντες : Δημήτρης Οικονομίδης, Χάρης Χριστοδούλου, Μαρία Ακκελίδου, Χάρης Σολωμού
Η ανάθεση σχεδιασμού μιας κατοικίας στην καρδιά της Λευκωσίας αποτελεί από μόνο του μια πρόκληση. Μια περιοχή που σίγουρα δε θυμίζει τίποτα από την υπόλοιπη πόλη, μια ιδιαιτερότητα που αποτελεί ταυτόχρονα αναπόσπαστο κομμάτι της ομορφιάς της. Συνδυάζοντας το παλιό με το σύγχρονο καταφέρνει σε κάθε περιδιάβασή της να μας θυμίζει την ιστορία, τον πολιτισμό μας καθώς και τις αξίες, τα ιδανικά εκείνων των εποχών που σταδιακά με το πέρασμα των χρόνων τείνουν να ξεθωριάσουν. Τις εποχές που όλος ο κόσμος ήταν ένα σπίτι, κάτι το οποίο προδίδει η αρχιτεκτονική και γενικότερα η πολεοδομία της παλιάς Λευκωσίας.
Αυτόν τον τρόπο ζωής επιθυμούν να έχουν και τα ζευγάρια για τα οποία προορίζεται η κατοικία. Ο Γιώργος με την Άννα και ο Μάριος με την Ελένη επιθυμούν μια κοινή συμβίωση στην κατοικία τους με την Άννα και τον Μάριο, όντας σχεδιαστές μόδας να θέλουν να εντάξουν και το χώρο εργασίας τους, ένα ατελιέ όπως και χώρο έκθεσης. Με τα πιο πάνω λοιπόν δεδομένα όσον αφορά την τοποθεσία αλλά και τις προτιμήσεις των χρηστών προέκυψε ο σχεδιασμός.
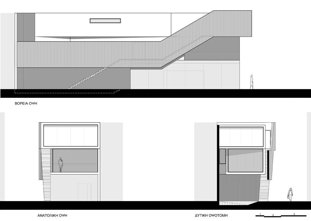
Η τοποθέτηση του χώρου έκθεσης των δημιουργιών των σχεδιαστών καθώς και του καταστήματος είναι στο ισόγειο, αξιοποιώντας έτσι την οδό Λήδρας, έναν από τους πιο εμπορικούς δρόμους στον οποίο εφάπτεται η μια πλάγια όψη του οικοπέδου αλλά επίσης συνδέεται και με την πρόσοψη διαμέσου ενός πεζόδρομου. Στον πρώτο όροφο γίνεται η διαρρύθμιση των κοινόχρηστων χώρων με μια μεγάλη βεράντα, η οποία, με την όψη της στην οδό Λήδρας, εκπληρώνει την επιθυμία των χρηστών για άμεση σχέση με την ζωντάνια της πόλης και των ανθρώπων της.
Στον δεύτερο όροφο διαμορφώνονται οι χώροι των δωματίων και το ατελιέ των σχεδιαστών χωρίς όμως να εμπλέκεται η χρήση του ενός με του άλλου. Η επιλογή του δεύτερου ορόφου για το ατελιέ δεν ήταν τυχαία: οι σχεδιαστές με αυτόν τον τρόπο θα έχουν πανοραμική θέα της πόλης που τόσο αγαπούν και εμπνέονται από αυτή. Ο κοινός άξονας από τον οποίο προκύπτει η διαμόρφωση των ορόφων είναι το κλιμακοστάσιο, το οποίο, βρισκόμενο στο εξωτερικό του κτιρίου, δηλώνει την μετάβαση που γίνεται από τον ένα χώρο στον άλλο.












