GGP-ZK HOUSE
GGP Architecture + Design
Γρηγόρης Πατσαλοσαββής
2011 | Υλοποιημένο
Έγκωμη, Λευκωσία
The project is located in a suburban area of the city of Nicosia, the capital of the Republic Of Cyprus, in a new residential area west to the city Centre.
The site is a typical residential plot with west orientation in a low rise and low density residential area. The maxim build up area is 60% of the site area and 35% site cover. The site has no major advantages or fixtures and that was a challenge to the architect keen to investigate an alternative approach to today’s residential design.
The architect, and owner of the house, main concern was to engage with the substance of the design of a house and question norms, regulations and typologies in order to reinterpret the idea of today’s Mediterranean house. Furthermore the house is the result of his ongoing research into the spatial, social and ecological issues in architecture today.
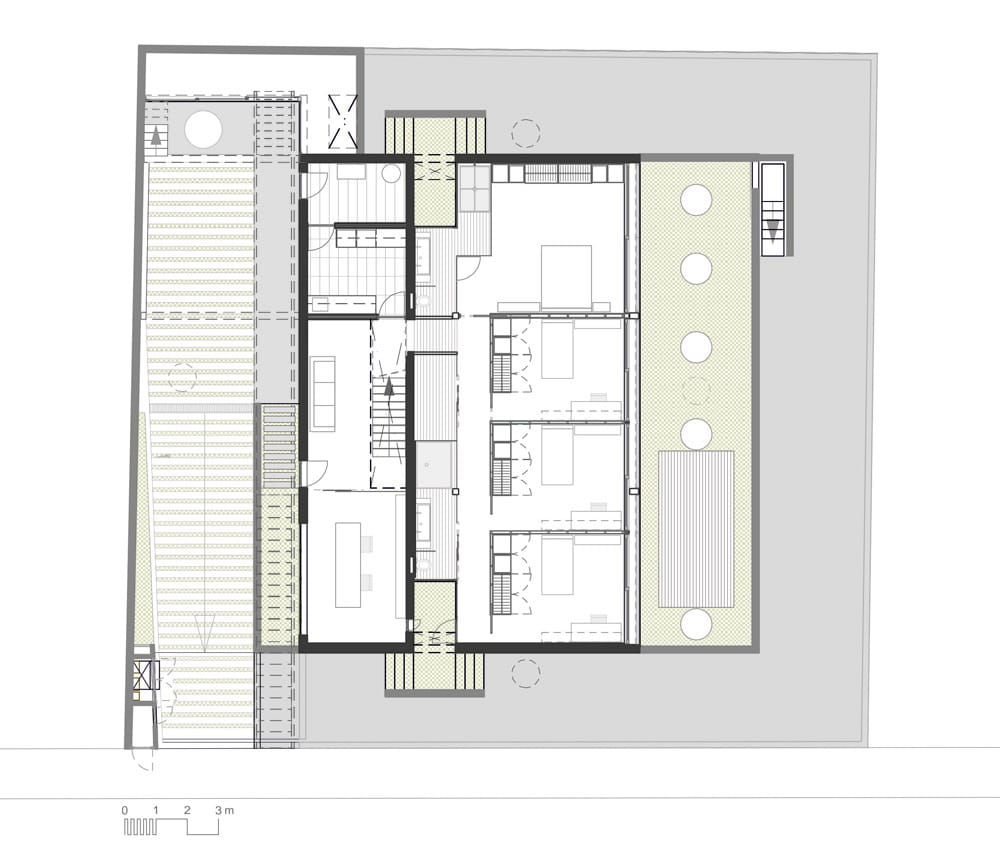
The first radical decision was to challenge the idea of the ground floor as the typical semi-private territory for the living spaces, and the idea of the private spaces as a box on a level above exposed to the elements.
By excavating the site, 1.5m from the street level, and locating the private spaces in a sunken solid box the architect used the insulating properties of the earth to create a more comfortable environment for the private spaces and to reduce the energy consumption to a minimum, especially during the hot summer nights.
The solid box creates the platform for a rectangular steel frame space, with high ceilings and a patio, for the public and semi-public spaces elevated from the street level by 2m.
The access to house is via a steel step ramp attached to the north side of the structure and on to a metal platform where the main entrance door is located.
The public and semi-public spaces, kitchen/dining room and living room, arranged around the patio facing south with views into the private garden and to Troodos mountains.
The private area, solid box, accommodates 4 bedrooms with a shower for the master bedroom and the main bathroom, a study room, the open play area as well as the laundry and services room. All bedrooms are facing south with big shaded openings to the private garden.
The solid box, ground floor, is constructed in faire face concrete, a maintenance free material, insulated with an internal thermal wall. The upper floor is constructed in a steel frame structure with an insulated external skin design (metal, wood and glass) that fulfills the design objectives for openness, interaction, transparency and flexibility. The sliding sun breaks on the south elevation provide adequate sun protection during the summer.



















