Evolution of Making in the North: Sheffield’s Cutlery Making
Irene Petridou
2016 | University of Nottingham, United Kingdom
Diploma project | Supervisor: John R. Morgan
Ειρήνη Πετρίδου
2016 | University of Nottingham, United Kingdom
Διπλωματική εργασία | Διδάσκων: John R. Morgan
The particular thesis project focuses on the evolving conflict between handcraft and technology in the cities of the north of England, as in their recent history they thrived upon the art of handcraft where today they march towards technological achievements in the digital world. It is crucial, for future development, to determine though whether it is their true form or their true practicing that makes them disparate.

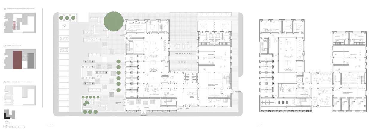
Outcomes of Thesis Document ‘Evolution of Making in the North’, © Irene Petridou & Elina Hadjioannou
The proposed, modernised industrial model in Sheffield traditionally specialising in cutlery, aims to dissect the manufacturing process in two parts: the apprenticeship (in understanding the journey towards a finished craft) and the manufacturing (this is a technological or a handcrafted process). In sectioning the interdependent zones; the city centre can re-embrace the workshop as an urban phenomenon that will pursuit stronger community bonds. This will fight against unemployment rates and the deprived centre of Sheffield. The workshop culture needs to be dissociated from its original purpose of teaching handcrafts and transform into a dual concept; that of technology and handcraft coexisting. Through the making and learning, the workshops can extend their purpose and drive innovative techniques that can initiate start-ups and small businesses.
Η διπλωματική αυτή εργασία πραγματεύεται τη σύγκρουση της χειροτεχνίας και της τεχνολογίας στις βόρειες πόλεις της Αγγλίας καθώς στη πρόσφατη ιστορία τους ευημερούσαν στην τέχνη της χειροτεχνίας και σήμερα βαδίζουν στα μονοπάτια τεχνολογικών κατορθωμάτων σε ένα ψηφιακό κόσμο. Για την μελλοντική ανάπτυξη των πόλεων αυτών είναι σημαντικό να εκτιμηθεί κατά πόσο οι δυο αυτές φιλοσοφίες συνυπάρχουν στην ύπαρξη η στην εξάσκηση τους.
Το προτεινόμενο, σύγχρονο βιομηχανικό μοντέλο στην πόλη του Sheffield εξειδικεύεται στα μαχαιρικά είδη μοιράζοντας την διαδικασία κατασκευής τους σε δυο μέρη: τη μαθητεία (κατανοώντας την διαδικασία έως το τελειωμένο προϊόν) και την βιομηχανοποίηση τους (είτε με τεχνολογικά μέσα η χειροτεχνικά). Διαχωρίζοντας τις ζώνες παραγωγής, ο πυρήνας της πόλης θα έχει την ευκαιρία να καλωσορίσει ξανά το ταπεινό εργαστήριο ως ένα αστικό φαινόμενο το οποίο ευελπιστεί να ενισχύσει τον βαθύτερο όρο της ‘κοινότητας’, ο οποίος νοσεί στο Sheffield. Το εργαστήριο του σήμερα, σκοπό έχει να ενώσει την τεχνολογία και την χειροτεχνία μέσα από την παράδοση της πόλης, την κατασκευή μαχαιρικών ειδών. Τα εργαστήρια αυτά, μέσα από την μάθηση , μπορούν να επεκτείνουν τον ρόλο τους γεννώντας πρωτοπόρες τεχνικές οι οποίες μπορούν να ξεκινήσουν start-ups και μικρές επιχειρήσεις.












